











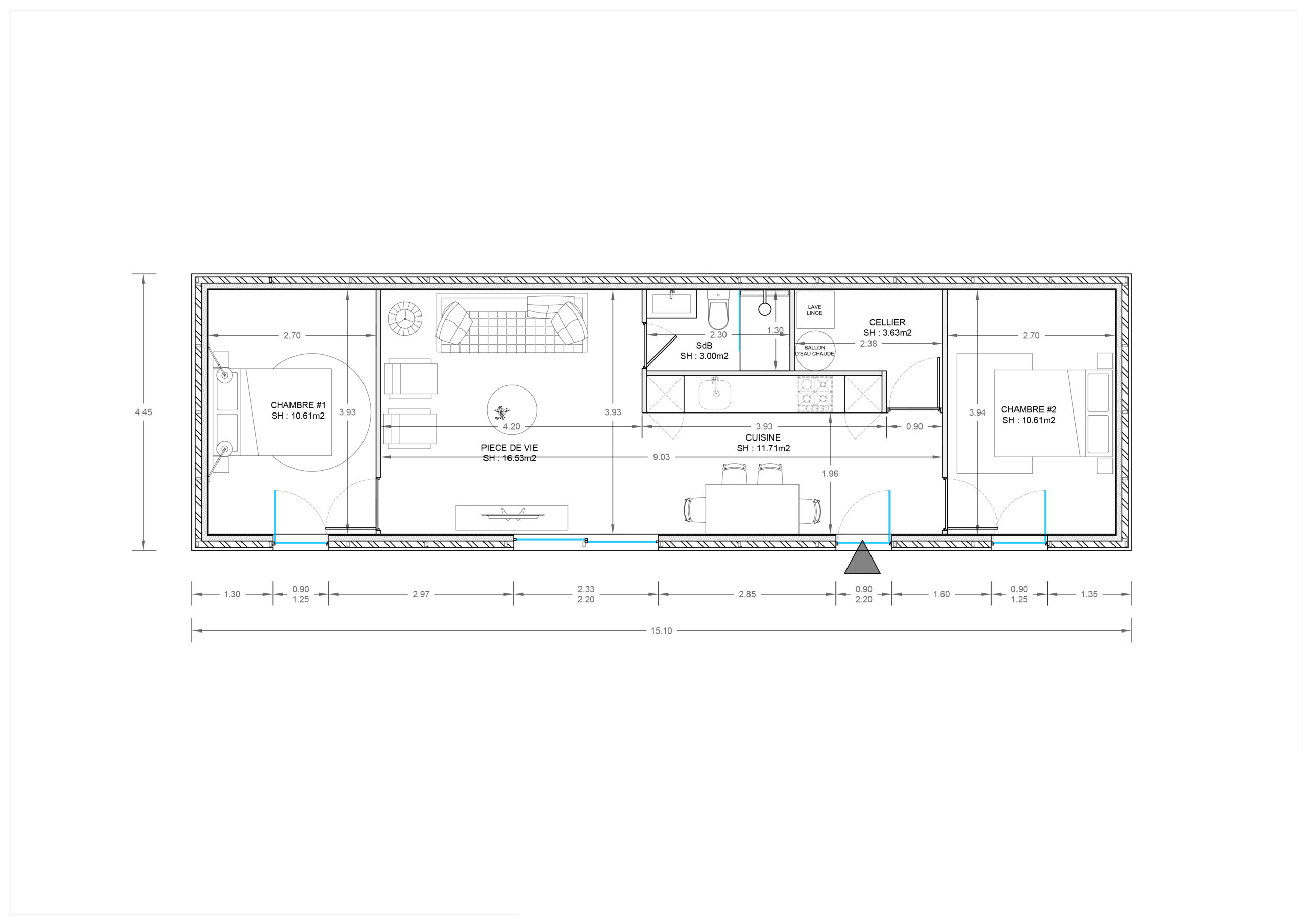
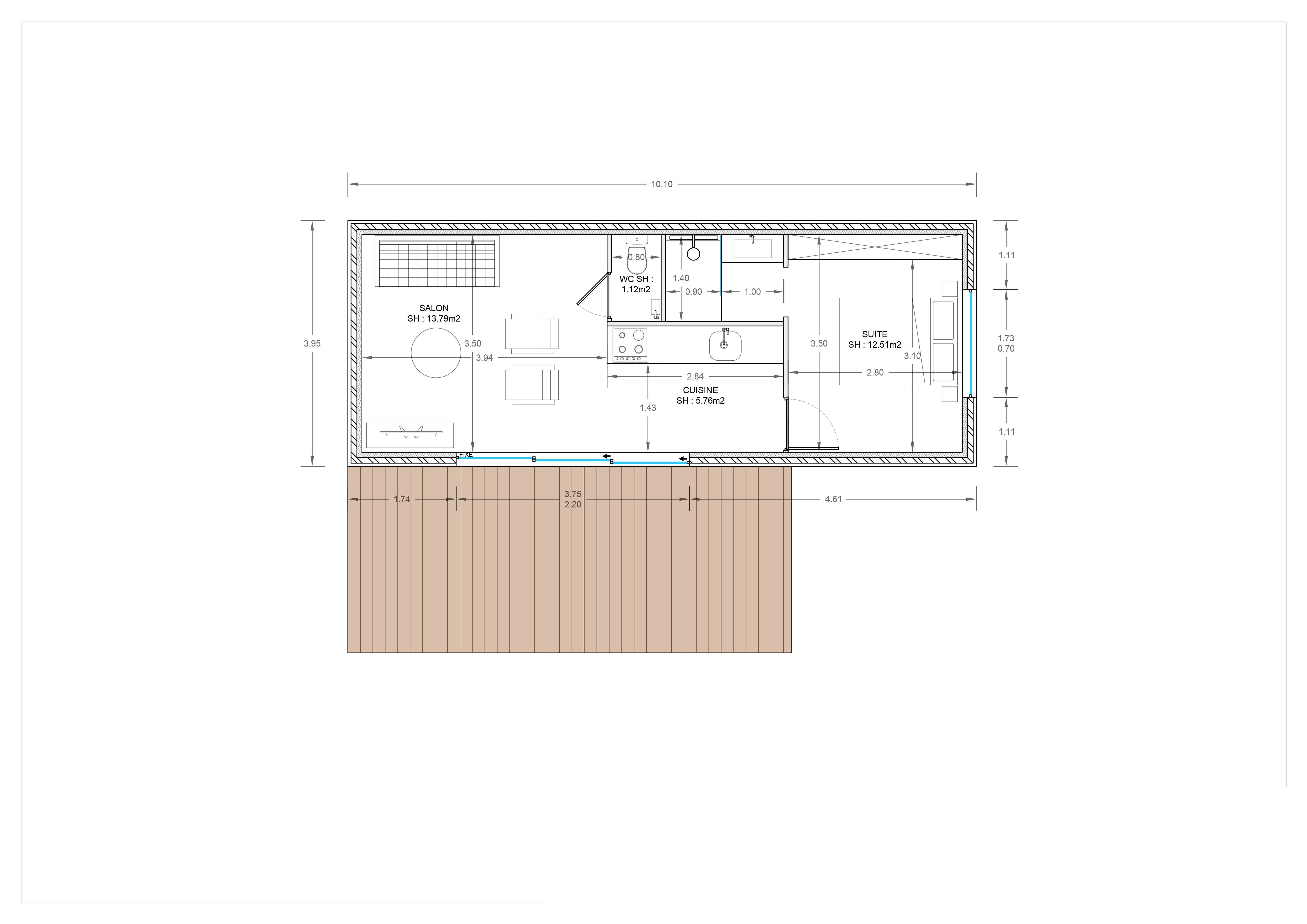
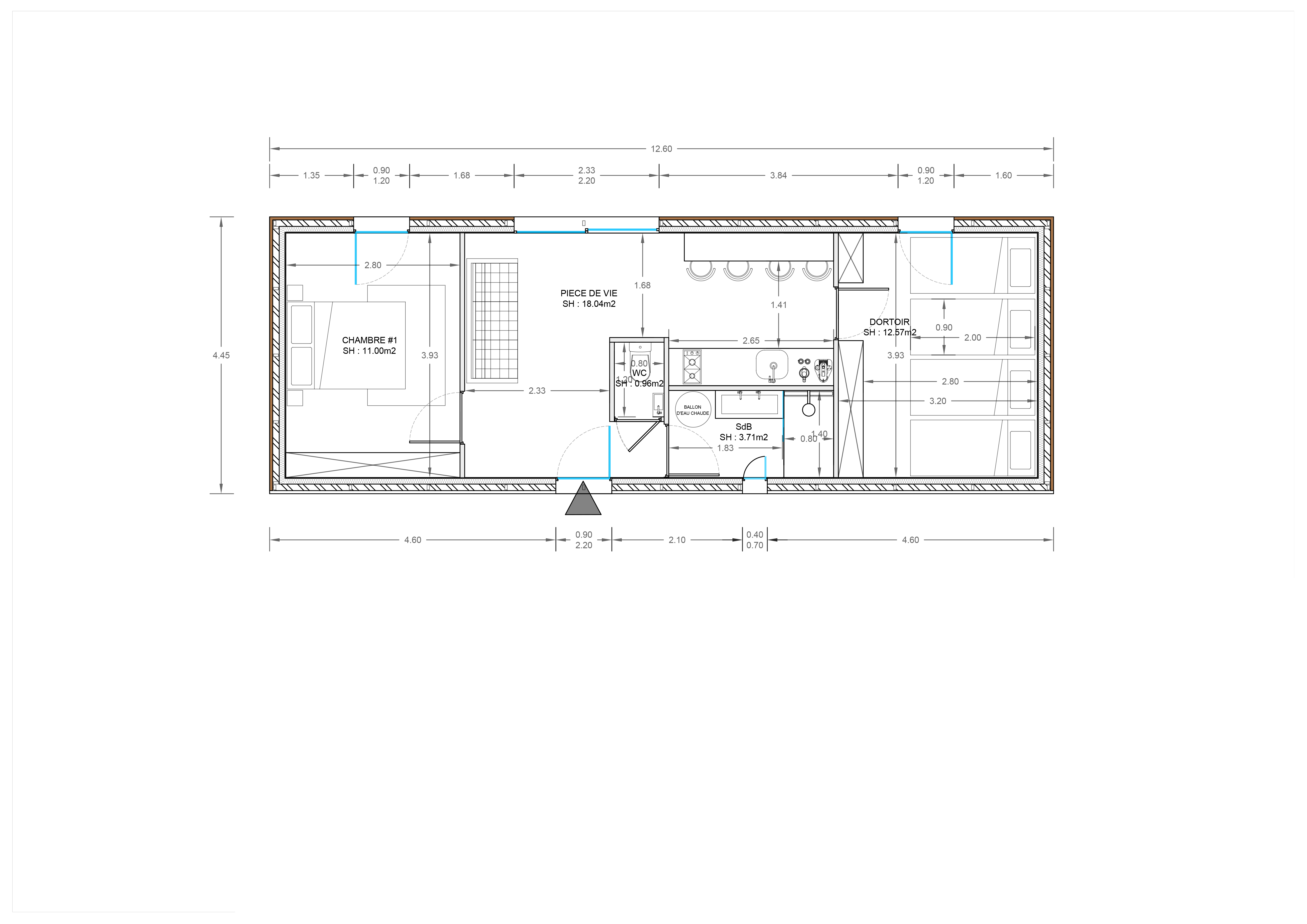
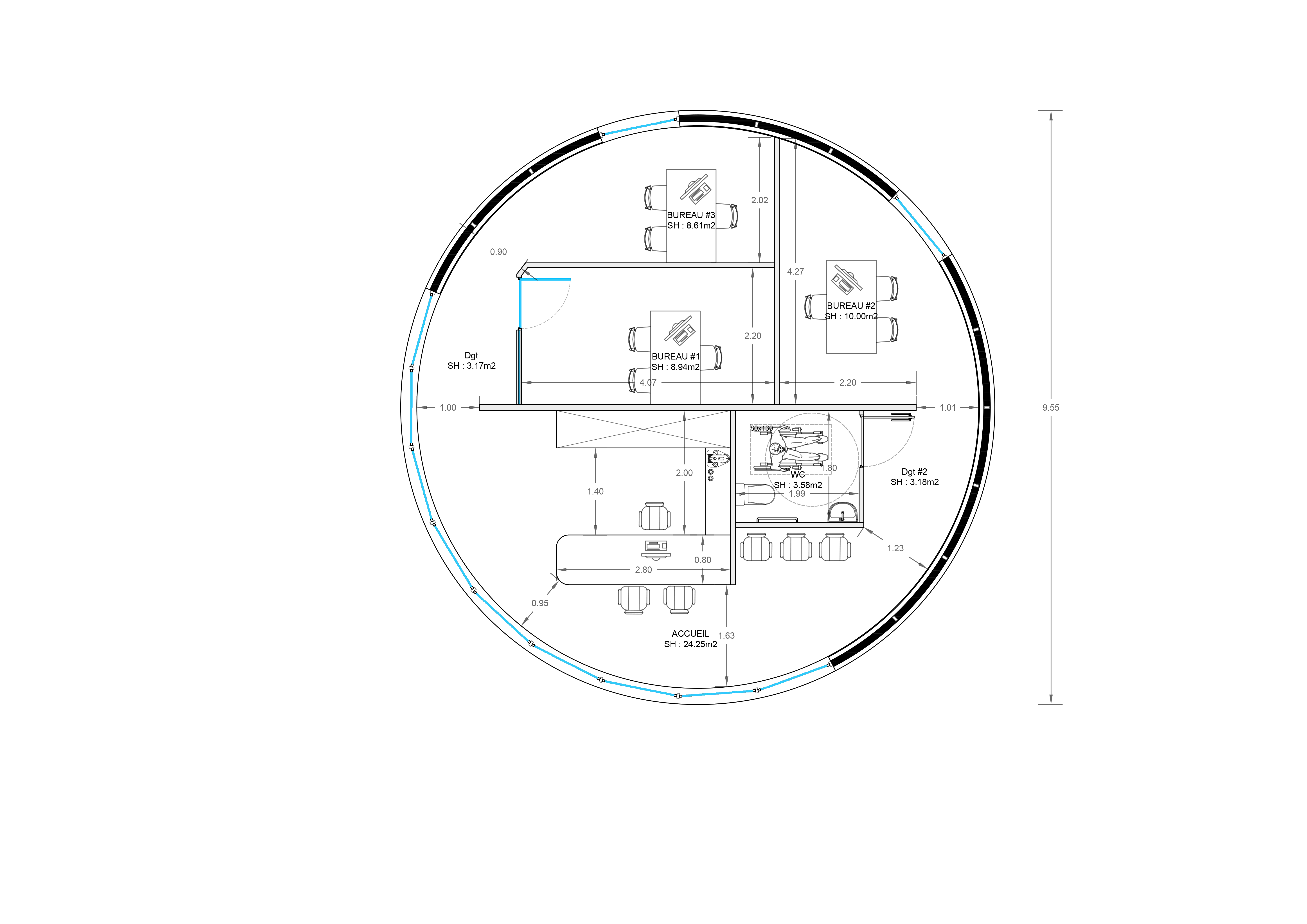
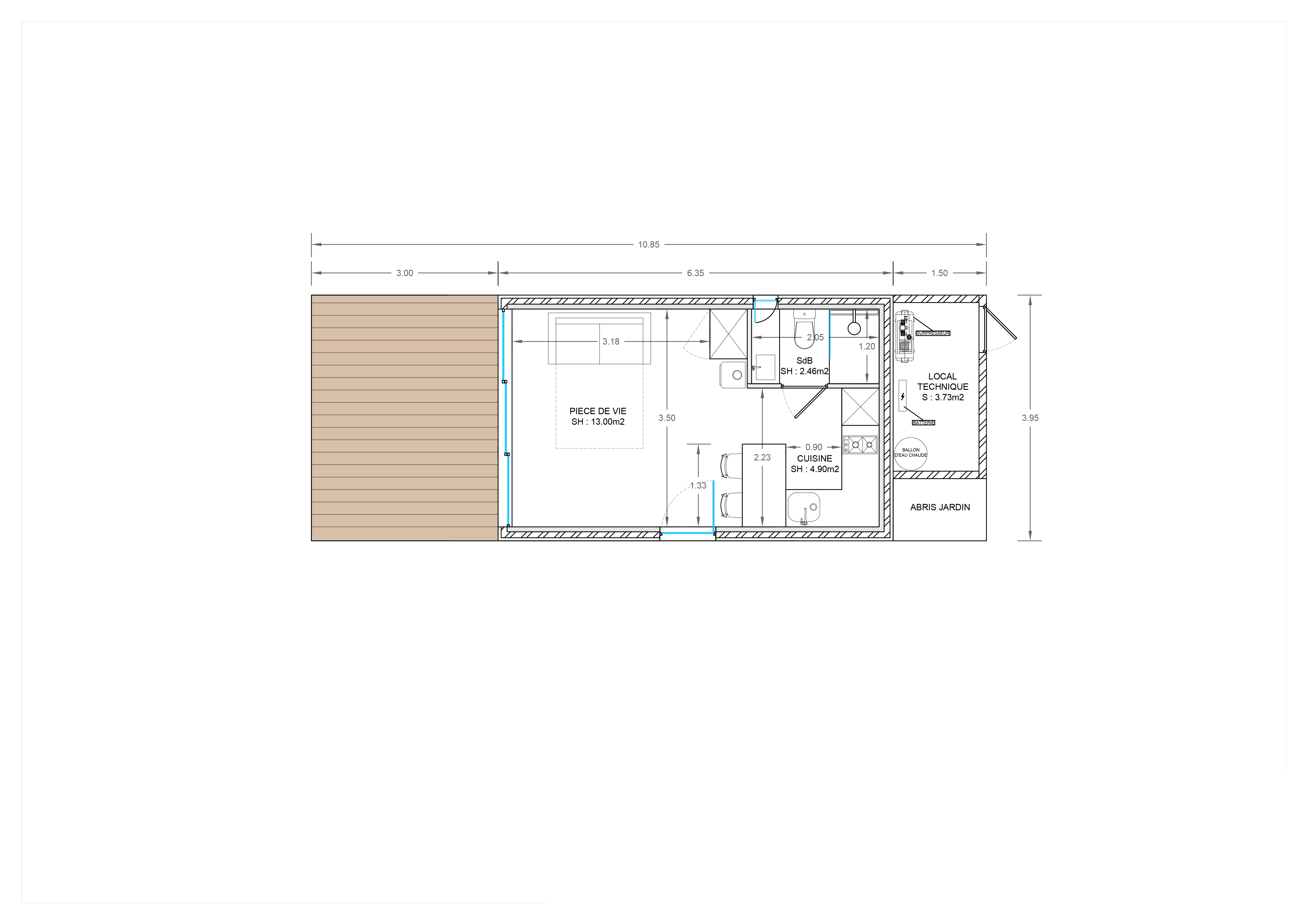
GAMME 1.0
Un module unique, optimisé pour vous offrir tout le confort dont vous rêvez avec un minimum d’espace perdu.
Découvrez nos réalisations :
SUPERFICIE MAXIMALE
60m²
NOMBRE DE CHAMBRES
1 à 2
NOMBRE DE SALLES DE BAINS
1 à 2












Un module unique, optimisé pour vous offrir tout le confort dont vous rêvez avec un minimum d’espace perdu.
Découvrez nos réalisations :
60m²
1 à 2
1 à 2

