









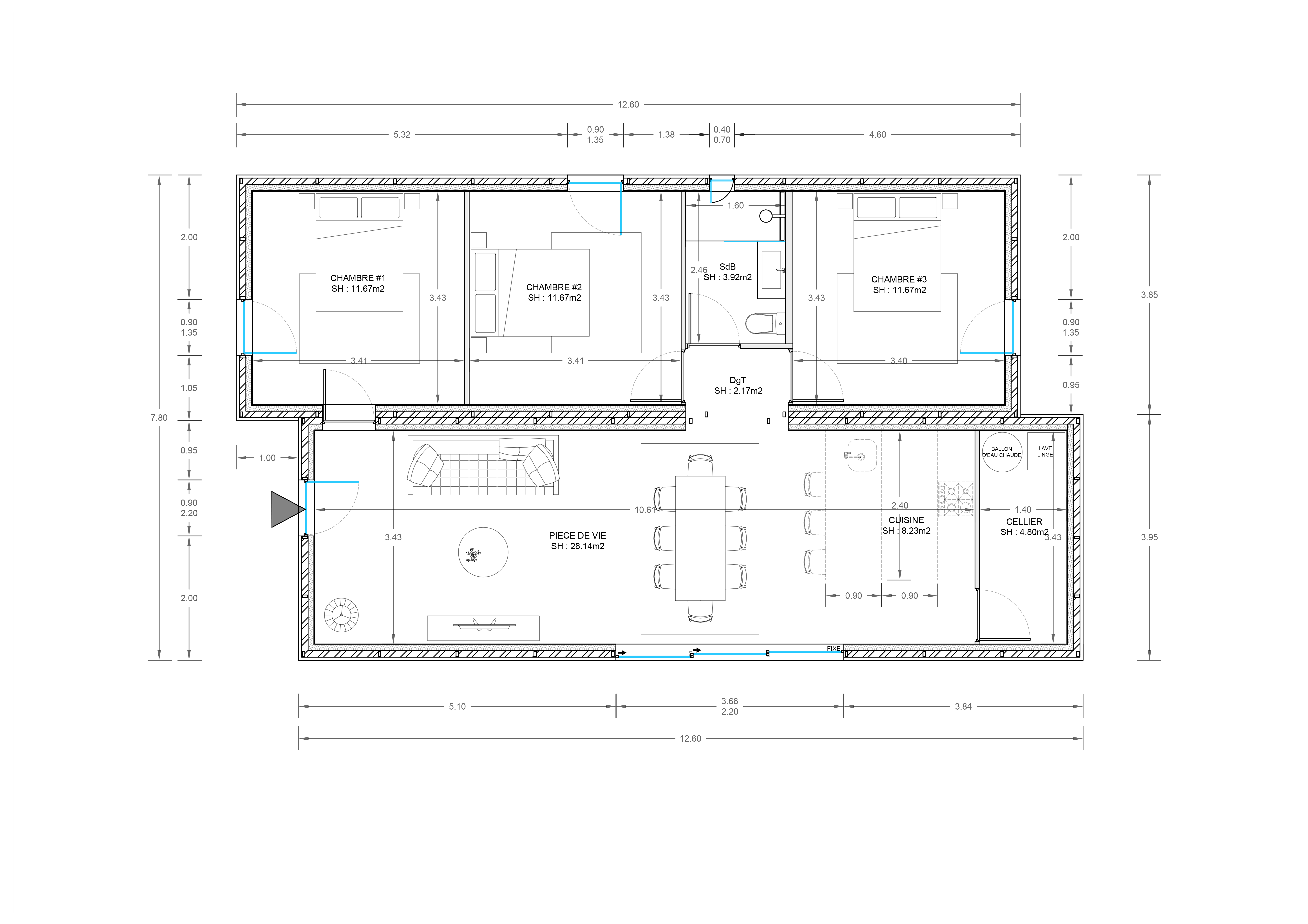
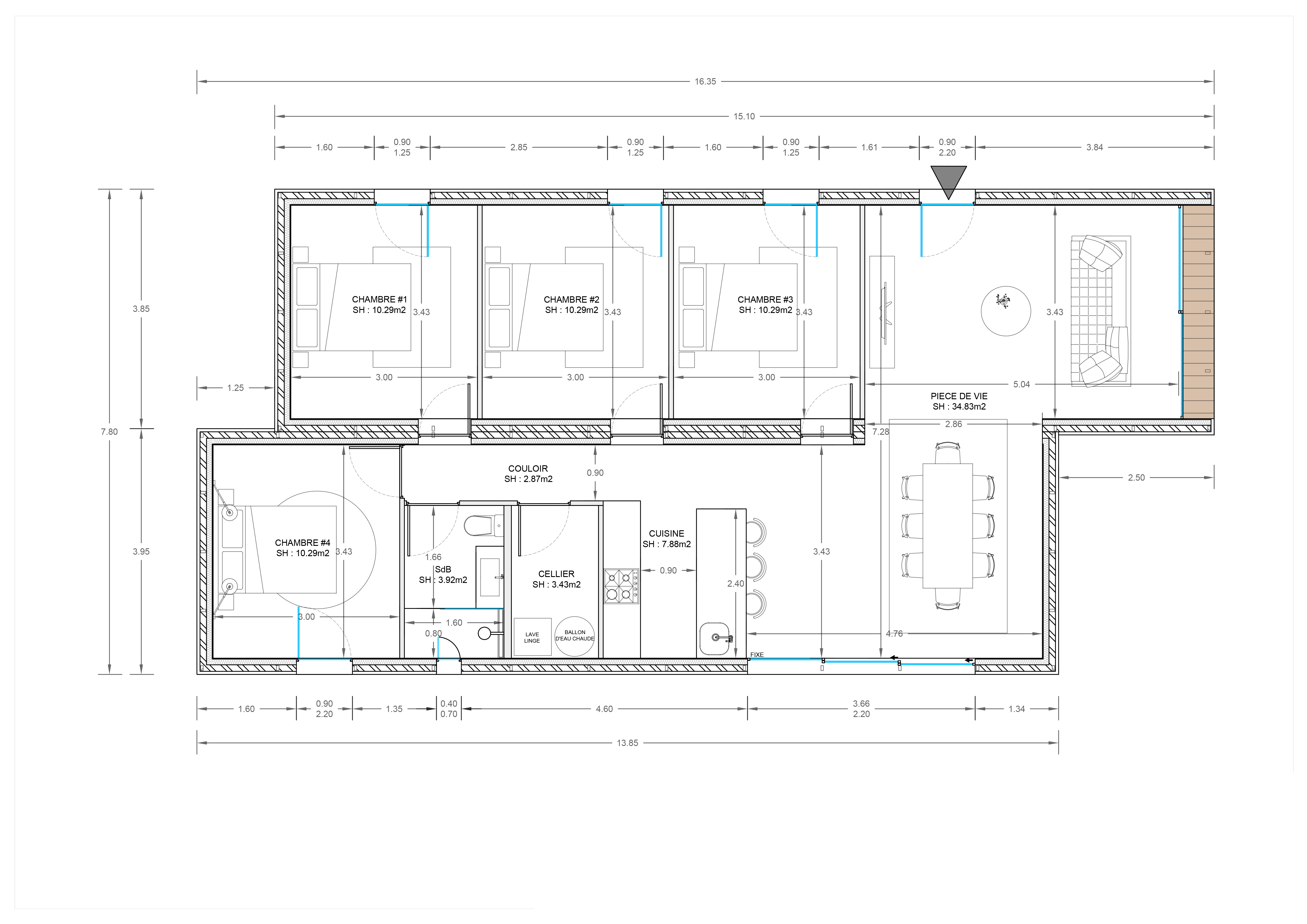
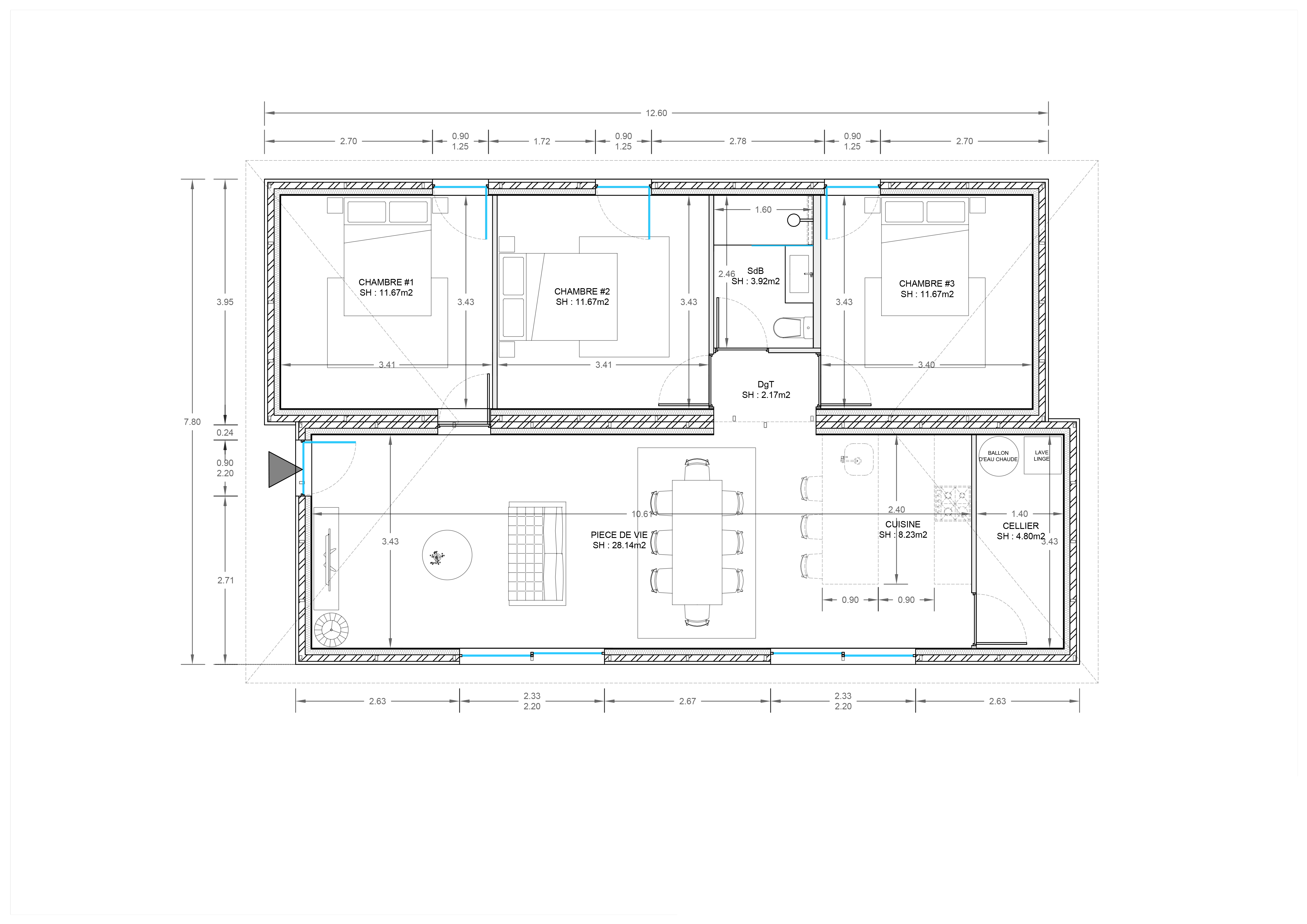
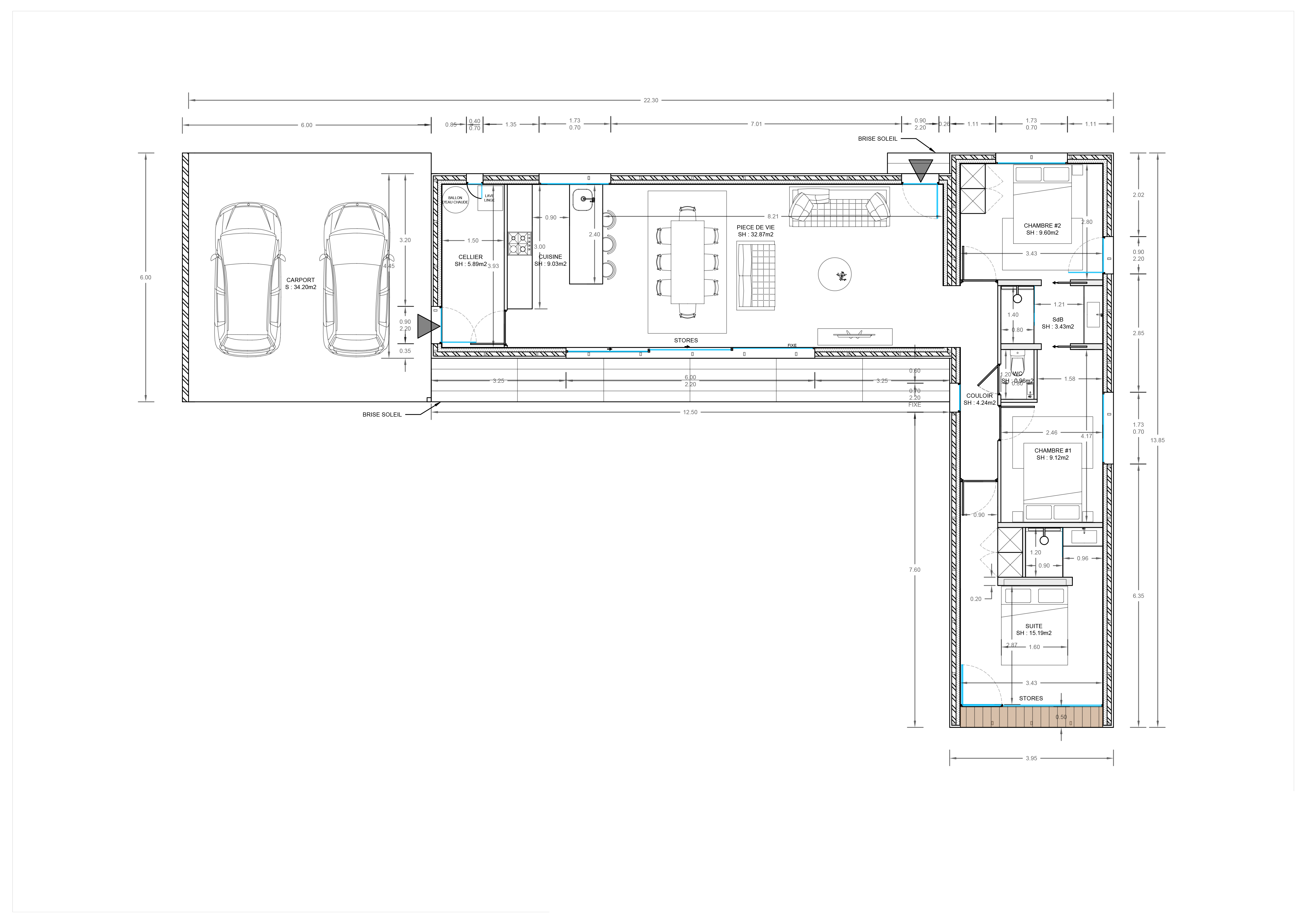
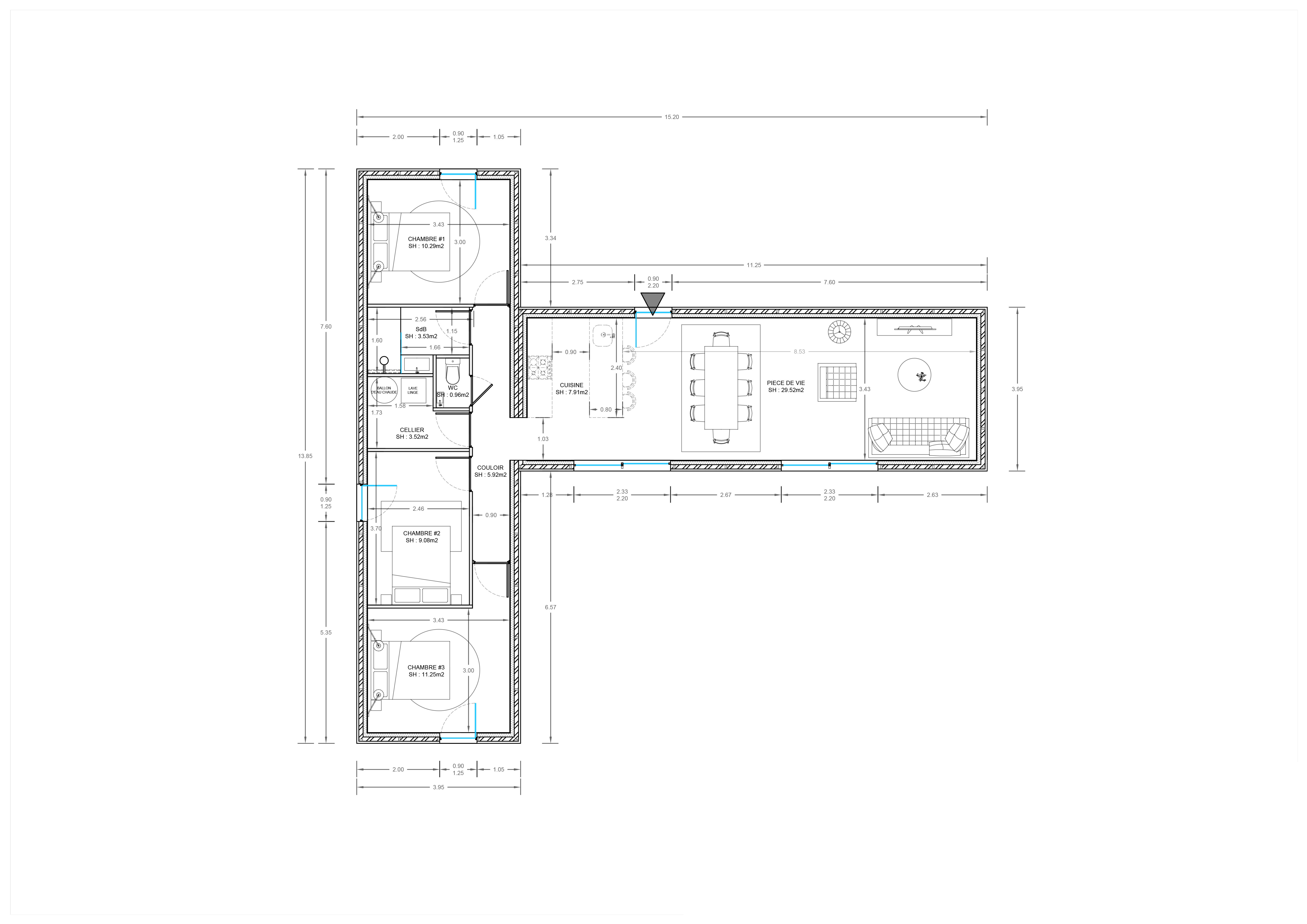
GAMME 2.0 – PLAIN-PIED
C’est notre construction la plus populaire puisqu’elle s’adapte à tous les modes de vies.
Découvrez nos réalisations :
SUPERFICIE MAXIMALE
120 m²
NOMBRE DE CHAMBRES
1 à 4
NOMBRE DE SALLES DE BAINS
1 à 2










C’est notre construction la plus populaire puisqu’elle s’adapte à tous les modes de vies.
Découvrez nos réalisations :
120 m²
1 à 4
1 à 2

