



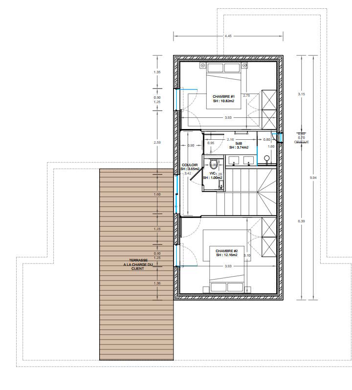
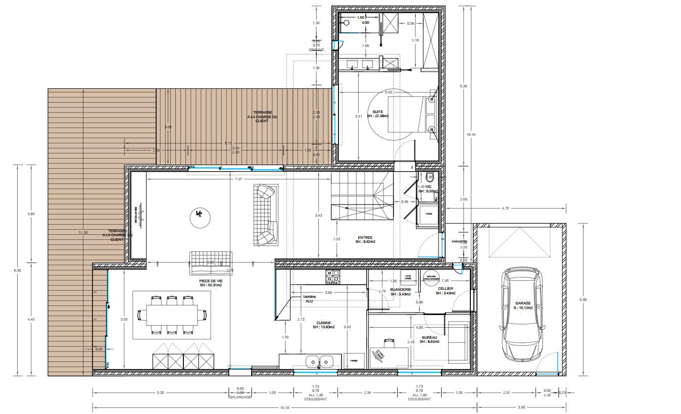
Maison modulaire d’exception à Gujan-Mestras (Gironde) – Villa contemporaine 147 m²
Située à Gujan-Mestras, au cœur du Bassin d’Arcachon en Gironde, cette réalisation incarne parfaitement le potentiel de la construction modulaire haut de gamme appliquée à l’habitat contemporain. Cette villa de 147 m² séduit par ses lignes élégantes, son architecture maîtrisée et ses volumes généreux.
Pensée pour offrir un cadre de vie tourné vers l’extérieur, cette maison met en valeur une organisation des espaces fluide et ouverte. Les pièces de vie bénéficient d’une luminosité remarquable grâce à de larges ouvertures, créant une véritable continuité entre intérieur et extérieur, particulièrement appréciable dans un environnement privilégié comme celui du Bassin d’Arcachon.
L’architecture contemporaine de cette maison modulaire repose sur un équilibre subtil entre esthétisme et fonctionnalité. Les volumes ont été travaillés pour offrir confort et liberté de circulation, tandis que les finitions soignées viennent renforcer le caractère haut de gamme de l’ensemble.
Ce projet illustre parfaitement la capacité de la construction modulaire à Gujan-Mestras à répondre aux exigences des projets résidentiels les plus ambitieux. Grâce à une fabrication en atelier et une conception sur mesure, cette solution permet de garantir qualité, précision et maîtrise des délais, tout en offrant une grande liberté architecturale.
Cette maison d’exception s’intègre harmonieusement dans son environnement naturel, en proposant un cadre de vie moderne, confortable et durable.
Home Industrie accompagne les particuliers souhaitant réaliser une villa modulaire en Gironde, notamment sur le secteur du Bassin d’Arcachon, avec des solutions sur mesure alliant design, performance et qualité de finition.


